MEIRI

NEUBAU HOLZHAUS MEIRINGEN

AUSGANGSLAGE
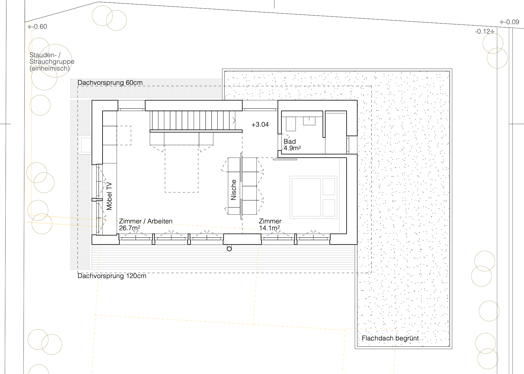
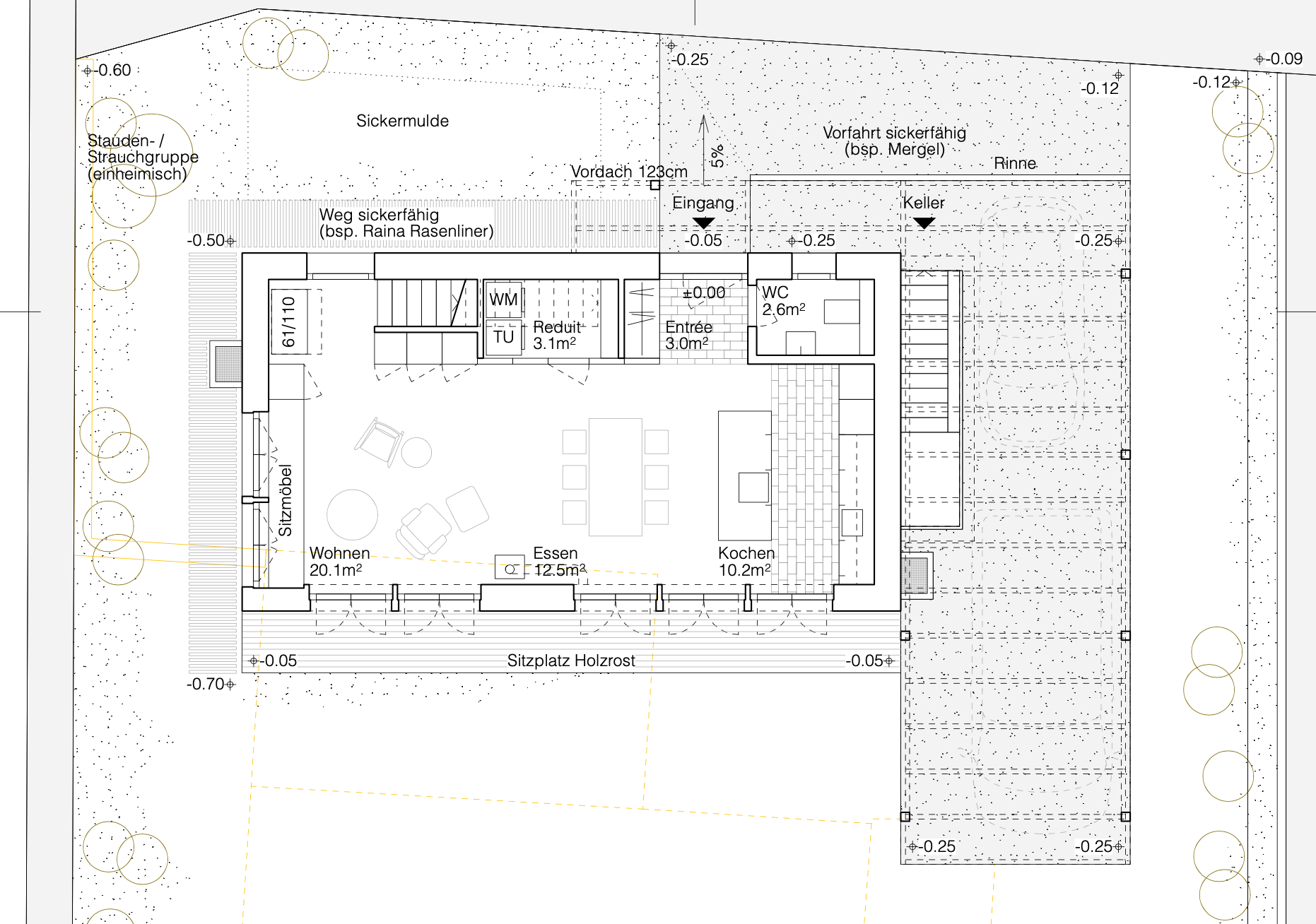
Jede Lebenslage stellt neue Anforderungen an das Leben und das Wohnen. In Meiringen will man sich verkleinern: Ein Haus für Zwei, mit Möglichkeit zur Beherberbung weiterer Familienmitglieder. Das Haus in Meiringen bettet sich ein in eine durchmischte Umgebung: Ein grossmassstäbliches Industriegebäude zum einen und eine gewachsene, dörfliche Struktur zum anderen. Die Lagequalität ergibt sich inbesondere durch den Weitblick in die Natur und die Berge.

PROJEKT
Im Innern ist das Haus klar und effizient und schafft es mit einigen räumlichen Details, die Schönheit der Einfachheit zu zelebrieren. Das Haus sucht seinen Charakter im Charme der Materialien: Diese sollen robust und langlebig sein. Der Holzbau stellt hierfür eine passende Lösung dar. Auch in der äusseren Erscheinung bleibt das Haus schlank und bettet sich mit seiner rhythmisch leichten Fassade gut in die Umgebung ein. Im Inneren schafft das Material Behaglichkeit und Wärme.

KOLLABORATION
Das Projekt entsteht in enger Zusammenarbeit mit Beer Holzbau, Ostermundigen. ASSL übernimmt federführend die Kommunikation mit der Bauherrschaft und die Planung, unter Berücksichtigung konstruktiver und ausführungstechnischer Vorgaben durch den Holzbauer. Nach erfolgter Baufreigabe wird das Projekt durch Beer Holzbau in Vorfabrikation realisiert.



Ort: Meiringen
Auftraggeber: Privat
Leistungen: Planung bis Realisierung
Kollaboration: Beer Holzbau
Jahr: 2023 - 2024