CHAMP

ERWEITERUNG SCHULANLAGE CHAMPAGNE

AUSGANGSLAGE
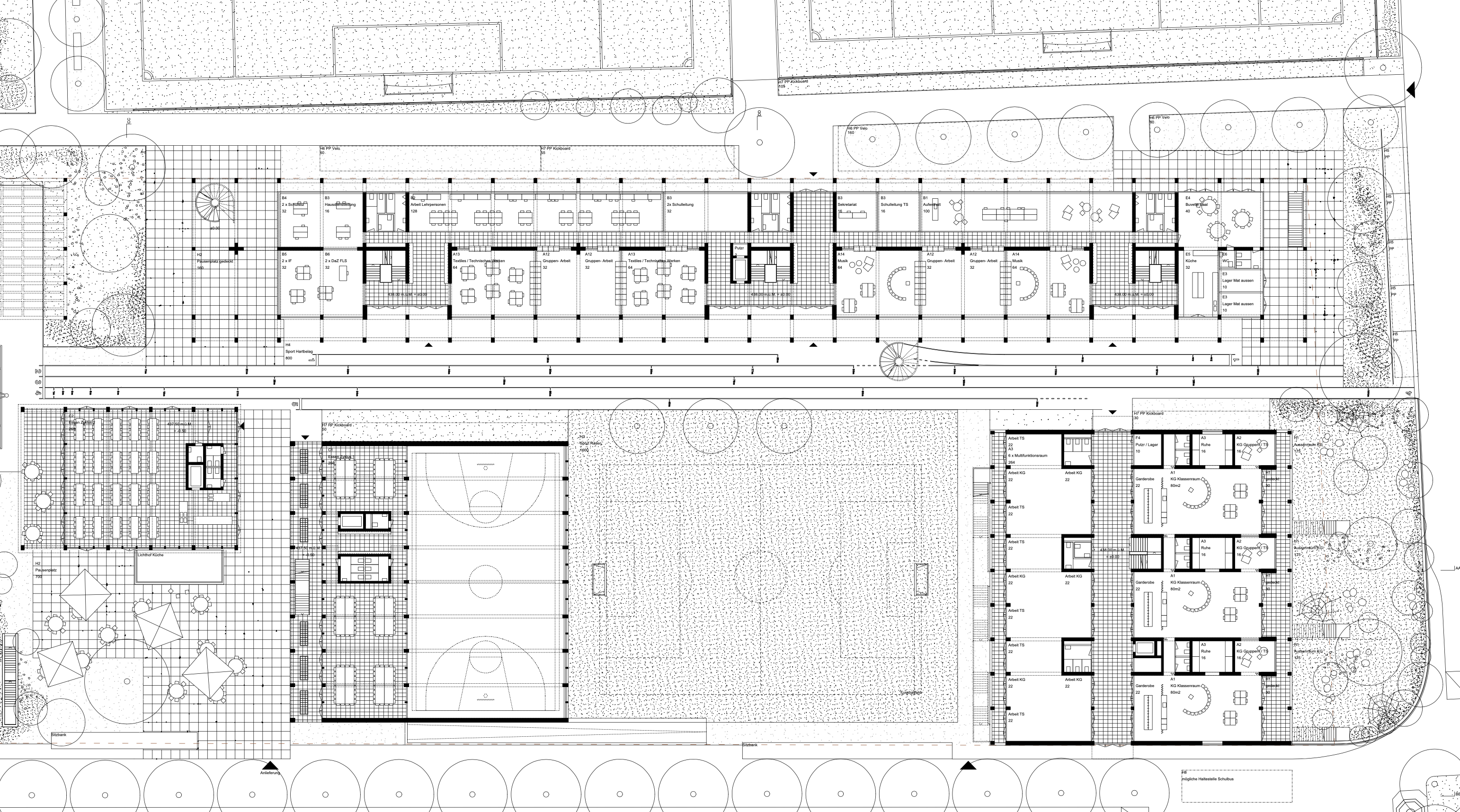
Die Erweiterung der Schulanlage Champagne stellt insbesondere zwei Anforderungen an das Projekt: Den Erhalt und die Fortsetzung des schützenswerten Gebäudeensembles und der Aussenräume, sowie die Anpassung an die neuen betrieblichen Anforderungen an die Gesamtanlage und an die aktuellen pädagogischen Werte. Denn bei aller Veränderung der Schule bleibt eines bestehen: Der Bau. Konzipiert zu einer bestimmten Zeit unter einem bestimmten Leitbild und dennoch beständig über Raum und Zeit hinweg. Die Schulfigur von Max Schlup ermöglicht diese Metamorphose.

PROJEKT
Durch die präzise Setzung der Baukörper werden feinmaschige Wegnetze und verschiedenartige Aussenräume geschaffen. Spiel und Bewegung finden gleichermassen Platz wie Rückzug und Sicherheit. Die von Schlup vorgelegte Komposition der Aussenräume mit Sitzstufen, Wasser-, Stein-, und Sandbecken, Rasenflächen, Büschen und Bäumen wird fortgesetzt und bietet den Kindern eine reichhaltige Erlebniswelt als zentralen Teil des Alltages. Die Schule als Ganzes und ihre Rolle für die Öffentlichkeit, wie sie Schlup verstanden hat, bleibt der wichtigste Grundstein des Projekts und erscheint mit der Entwicklung in Richtung Tagesschule aktueller denn je. Es wird eine heterogene und differenzierte Schullandschaft konzipiert, mit dem Verständnis der Institution Schule als ein kleines Gemeinwesen. Ein Mikrokosmos, vielschichtig vernetzt mit dem Stadtgefüge.



Ort: 2502 Biel
Auftraggeber: Stadt Biel-Bienne
Leistungen: Wettbewerb
Kollaboration: Felix Ledergerber
Jahr: 2019